KALLANG PLANNING AREA – HOTEL

The project involves a proposed amendment to an already approved hotel development plan. This includes the erection of a new 6-storey hotel with 48 rooms and a restaurant on the 1st storey at 44 & 46 Horne Road (LOT 01611P TS17). Additionally, it includes the amalgamation with an existing 6-storey hotel (46 rooms) located at 48 Horne Road (LOT 01483A TS17), along with necessary additions and alterations to unify and upgrade the overall infrastructure.
GIMS & ASSOCIATES PTE LTD
44, 46, 48 Horne Road, Kallang Planning Area, Singapore
November 2024
This integrated redevelopment plan aims to enhance hospitality infrastructure within the Kallang Planning Area by merging two adjacent hotel properties. The goal is to improve efficiency, aesthetics, and guest experience through a seamless architectural and operational unification. The blueprint and layout provided showcase meticulous coordination between MEP systems and structural planning. Special attention has been given to space optimization, service routing, and regulatory compliance.
TANNERY ROAD

This project focuses on the proposed additions and alterations to an existing 9-storey light industrial flatted factory building, located at No. 1, Tannery Road in the Geylang Planning Area. The scope includes structural enhancements and internal reconfigurations to modernize the facility and improve operational efficiency.
AC CONSORTIUM PTE LTD
Lot 03370C & 10518L MK24, No. 1 Tannery Road, Geylang Planning Area, Singapore
February 2025
The project aims to upgrade an operational industrial facility through a carefully planned series of additions and alterations. This includes reconfiguring internal layouts, updating services, and ensuring compliance with current building codes and regulations.
The design approach integrates advanced tools like Revit for seamless coordination between disciplines and ensures accurate implementation through AutoCAD drafting. The use of Microsoft Project allows efficient project scheduling, milestone tracking, and stakeholder coordination.
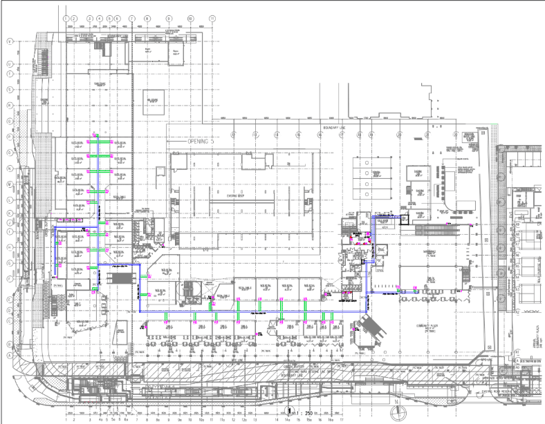
GEK POH SHOPPING CENTER

This project entails the proposed electrical installation works in conjunction with the addition and alteration of the existing 2-storey Gek Poh Shopping Center. The work is planned for lots 00657C & 00658M MK09, located at 762 & 763 Jurong West Street 75, within the Jurong West Planning Area. The focus is on modernizing the building’s electrical infrastructure while aligning with broader architectural upgrades.
GIMS & ASSOCIATES PTE LTD
762 & 763 Jurong West Street 75, Lots 00657C & 00658M MK09, Jurong West Planning Area, Singapore
September 2024
The scope of this project is to implement new electrical systems aligned with architectural changes to the Gek Poh Shopping Center. This includes wiring upgrades, panel board adjustments, and integration with other building services while ensuring full compliance with Singapore's building and safety regulations.
Advanced tools such as Revit are used for modeling and system clash detection, while AutoCAD handles the precision of electrical schematics. Project progress and milestones are efficiently managed using Microsoft Project, ensuring timely delivery and client satisfaction.